





























中国 黄冈
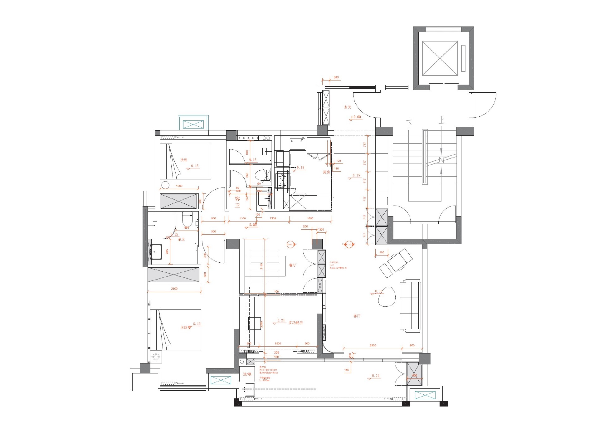
在22年伊始,我开始对能够催化多样性事件发生的空间产生兴趣。简单来说就是行为不必按照空间行进,毫不相干的事件却交织发生。能够催化上述事情发生的空间大概率是包容的,开放的。于是我开始构思“半住宅”系列。
“半”不仅是几何意义上的等分,而是一种搅动。也是对Bill Hillier提出的空间的搅动性(churning)的发散理解。搅动在词义上总有一种暗示与诱导的意向,如同交错的空间总会吸引人不断地向前探索;转角遇到的人,也会无意识地默记这是你们的第几次相遇。在我看来,建筑师利用空间排布的“伎俩”促成了这些好奇与偶遇。
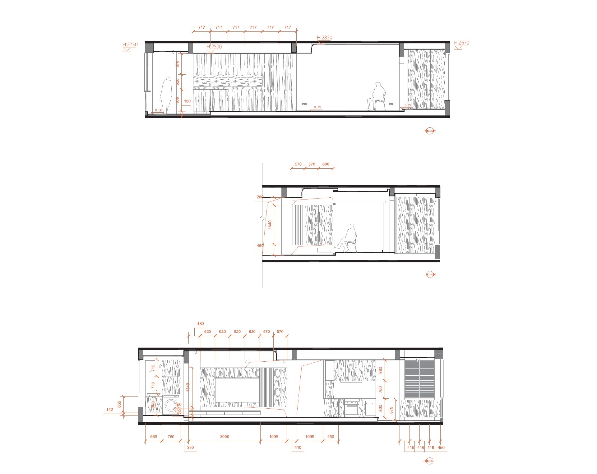
“半住宅”系列首作,我将行为上的搅动作为尝试的核心,确定了“半回游”作为出发点的概念。住宅中各个空间的边界是破损,镂空的,我将其称为“流动的盒子”。破损可以让居者回游,镂空可以使物质流动。生物、植物、分子、电磁波在盒子之间书写着自由。居者可以在盒子之间无限重复着汉密尔顿路径并同时刷新着微信步数。甚至小猫都可以通过镂空的缝隙在电视与书本之间穿墙瞬移。最欢脱的是阳光与空气,他们迅速占领了所有空间,并热衷于轮值更替。