

















中国 沈阳
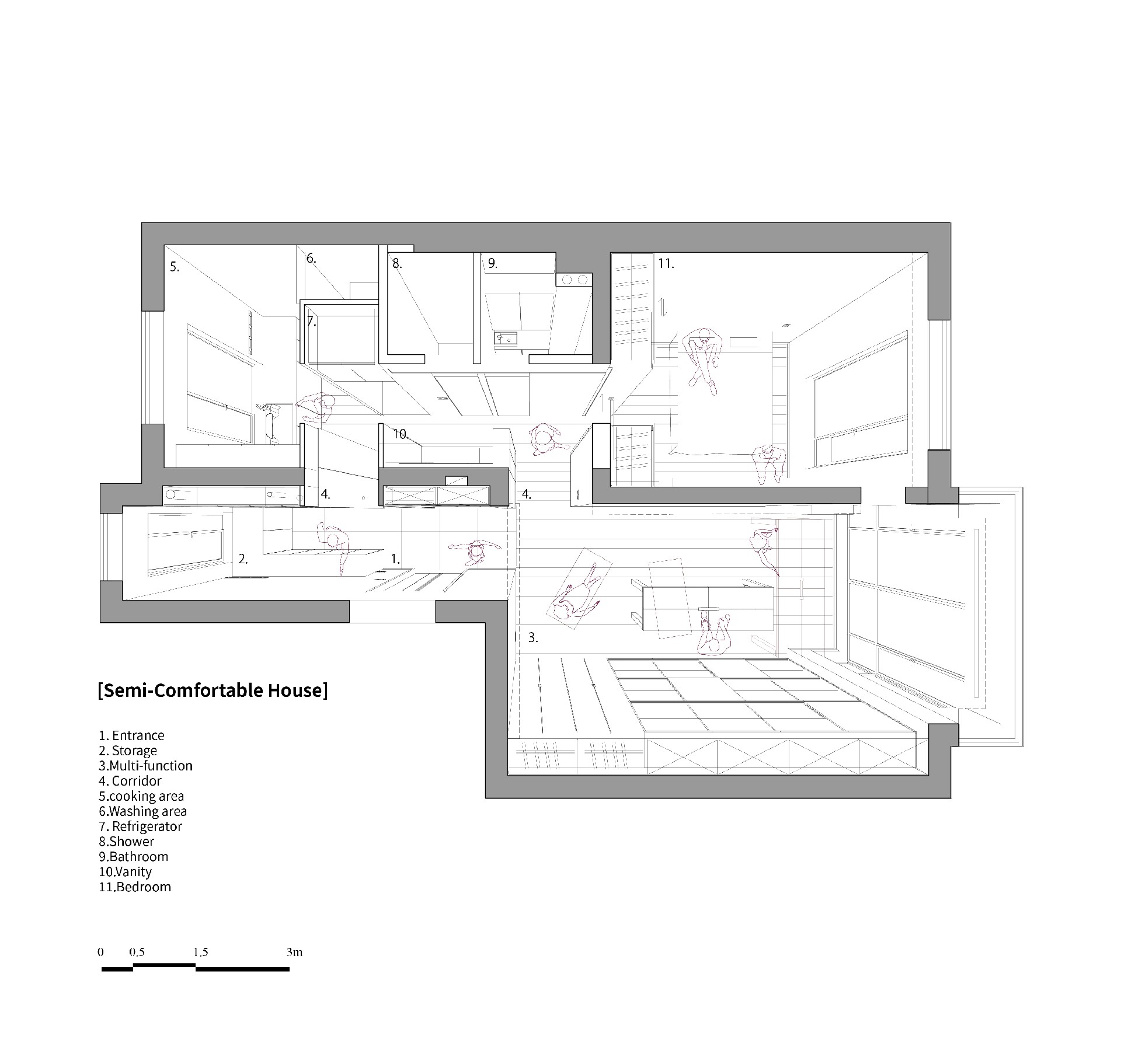
“半住宅”系列的第二作,重心更多的放在了解决问题上。该住宅位于高层集合住宅的二楼,剪力墙结构,区分室内空间的墙体大都不可拆除,户型也是限制较多的L型结构。由于屋主对于房屋的功能需求远远超出房子本身的物理面积。于是,模糊功能是在这次的作品中对“半”的回答。“模糊”,既包容又妥协。包容是它可以整合屋主所超出的需求,而妥协是需要在杂乱的已知条件中找出必要条件。家给人的感觉总是舒适的,温暖的,但同时也是过度舒适的。“半”的概念也包括了半舒适,是一种不畏惧制造不便与裸露缺点的态度。不被定义的空间,半舒适之家。它是半个住宅,也是半个山川。